Hengersberg Doppelhaushälfte NEUBAU ab AUGUST 2026 verfügbar
Doppelhaushälften in Hengersberg
🌿 Moderne Doppelhaushälfte in Hengersberg – Neubau mit Garage, Stellplatz & Energieeffizienzklasse A+
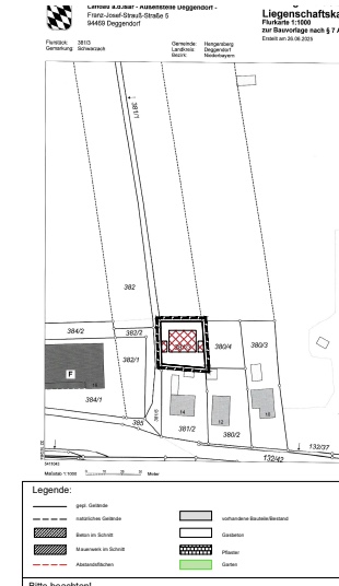
Adresse: Hauptstraße 14a, 94491 Hengersberg
Kaufpreis: 499.000 €
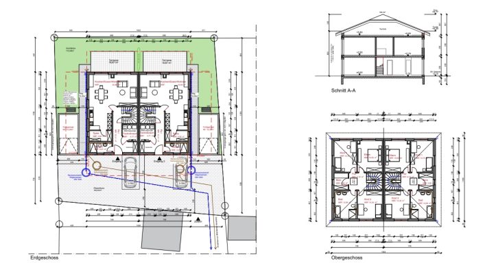
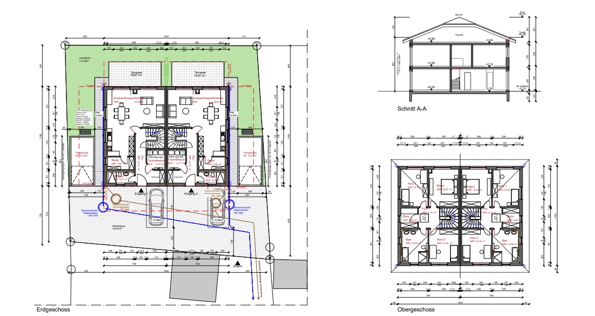
Wohnfläche: ca. 149 m²
Grundstück: ca. 295 m²
Fertigstellung: August 2026
Willkommen in Ihrem neuen Zuhause!
Diese moderne Doppelhaushälfte in ruhiger und zentraler Lage von Hengersberg überzeugt durch ihre durchdachte Raumaufteilung, hochwertige Ausstattung und energieeffiziente Bauweise (Energieklasse A+).
Auf einer Wohnfläche von rund 149 m² verteilen sich 5 Zimmer, die idealen Platz für Familien oder Paare mit Platzbedarf bieten. Zwei modern ausgestattete Badezimmer sorgen für zusätzlichen Komfort.
Die hellen Wohnräume schaffen eine freundliche Atmosphäre, während hochwertige Materialien und eine zeitgemäße Architektur für ein angenehmes Wohngefühl sorgen.
Das Grundstück mit ca. 295 m² bietet Ihnen ausreichend Freiraum für Garten, Terrasse und Erholung im Grünen. Eine Garage sowie ein zusätzlicher Stellplatz runden das Angebot ab.
Dank der energieeffizienten Bauweise profitieren Sie nicht nur von einem nachhaltigen Wohnkonzept, sondern auch von niedrigen Betriebskosten.
Highlights im Überblick:
Neubau (Fertigstellung August 2026)
Energieeffizienzklasse A+
5 Zimmer / 2 Bäder
Grundstück ca. 295 m²
Garage + Stellplatz
Hochwertige Ausstattung
Ruhige und zentrale Lage in Hengersberg
Kaufpreis: 499.000 €
Provision: PROVISIONSFREI
FÜR ANLEGER:
Kaltmiete: 1.490,00 €
Bruttomietrendite: 3,58%
AfA: Gebäude 5%
Diese Immobilie vereint modernen Wohnkomfort, Effizienz und Lebensqualität – perfekt für alle, die in Hengersberg ein neues Zuhause suchen.




