Moderne 3-Zimmer-EG-Wohnung mit Terrasse | Attraktive Kapitalanlage / Wohnfläche: ca. 106,86 m²
Wohnfläche: ca. 106,86 m²
Kaufpreis: 355.000 Euro
Profil: Kapitalanleger | Paare | Eigennutzer
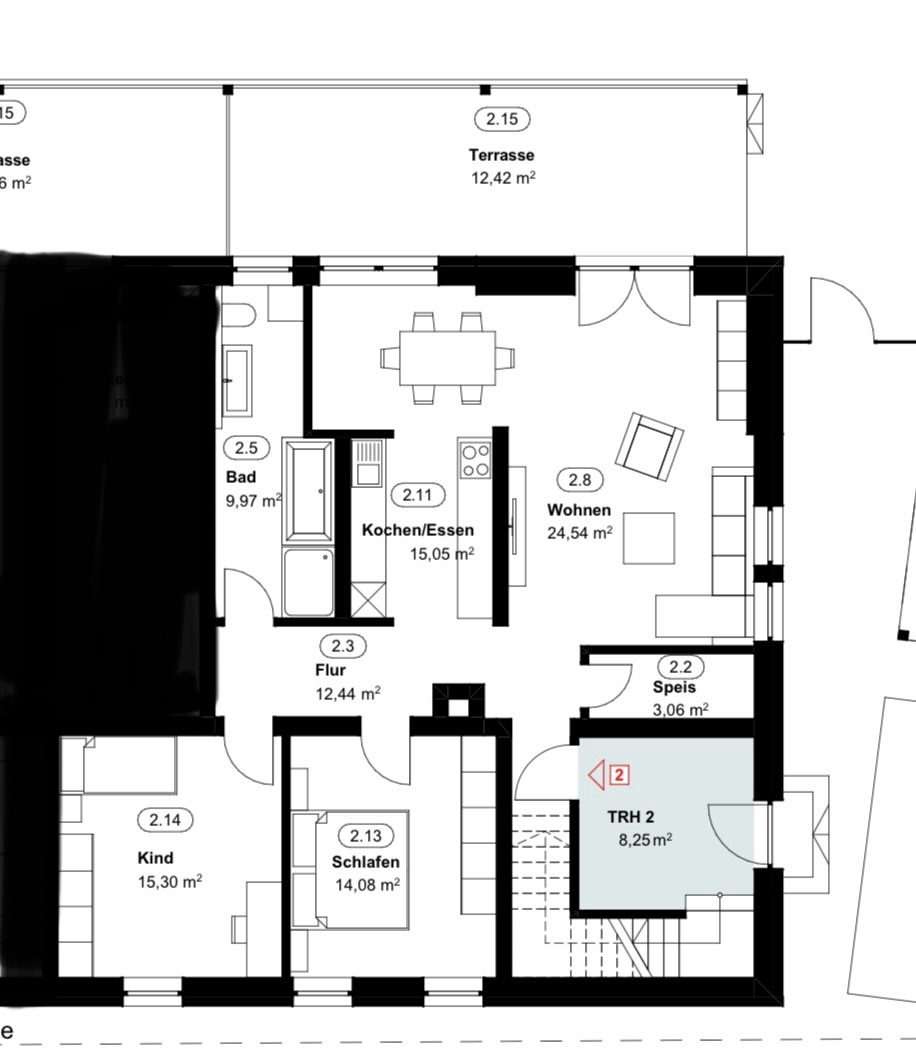
Diese optimal geschnittene 3-Zimmer-Wohnung im Erdgeschoss bietet eine ideale Kombination aus Wohnkomfort und Investitionssicherheit. Die Wohnung verfügt über einen hellen Wohn-/Essbereich mit direktem Zugang zur Terrasse sowie zwei gut proportionierte Schlafzimmer.
Diese stilvolle 3-Zimmer-Wohnung im Erdgeschoss überzeugt durch ihre klare Raumaufteilung, helle Wohnbereiche und ein angenehmes Wohnambiente. Die Wohnung befindet sich in einem 2025 kernsanierten Mehrfamilienhaus und verbindet den Charme eines Bestandsgebäudes mit modernstem Wohnkomfort.
Der Wohn- und Essbereich mit direktem Zugang zur Terrasse lädt zum Verweilen ein. Zwei ruhige Schlafzimmer bieten Rückzugsorte mit hoher Wohnqualität.
Ausstattung & Highlights:
Ruhige, sonnige Terrasse
Fußbodenheizung & hochwertige Materialien
Zeitloses Bad-Design
Energieeffiziente Haustechnik
Neubaugleicher Zustand
Dank der hochwertigen Kernsanierung eignet sich diese Einheit hervorragend zur dauerhaften Vermietung oder als komfortabler Eigenheim-Einstieg.
Ausstattung & Highlights:
Neubaugleicher Zustand (Kernsanierung 2025)
Fußbodenheizung
Energieeffiziente Bauweise (KfW 70)
Ruhige, gewachsene Wohnlage
Investment-Fakten:
Sehr gute Nachfrage im regionalen Mietmarkt
Geringer Instandhaltungsbedarf
Fazit:
Eine perfekte Wohnung für Paare oder anspruchsvolle Eigennutzer, die Ruhe, Komfort und Qualität schätzen.
Die Wohnung befindet sich aktuell noch in den letzten Zügen der Sanierung – der Feinschliff läuft. Besichtigungen sind aber ab sofort möglich!
Sichern Sie sich jetzt Ihren Eindruck, bevor andere schneller sind.
Jetzt zugreifen, Termin vereinbaren und Ihr neues Zuhause entdecken!
Lage:
Neukirchen (PLZ 94362) liegt im niederbayerischen Landkreis Straubing-Bogen und ist eine ländlich geprägte Gemeinde mit gewachsener Infrastruktur. Der Ort bietet eine ruhige Wohnumgebung mit Gastronomie sowie ärztlicher Betreuung im näheren Umfeld. Kindergarten und Schule sind im Ort bzw. in kurzer Entfernung erreichbar.
Die ländliche Umgebung mit Wäldern, Wander- und Radwegen bietet einen guten Ausgleich und vielfältige Freizeitmöglichkeiten in der Natur.




